成都【k101广场】最新价格信德信体育- 德信体育官网- APP下载息-售楼处电话热销户型全面解析特价房优惠政策线上销售中心

发布日期:2025-10-03 07:34:52 浏览次数:

  德信体育,德信体育官网,德信体育APP下载,德信体育网址您当前使用的浏览器版本过低,可能存在安全风险,建议升级浏览器,或者用以下浏览器浏览

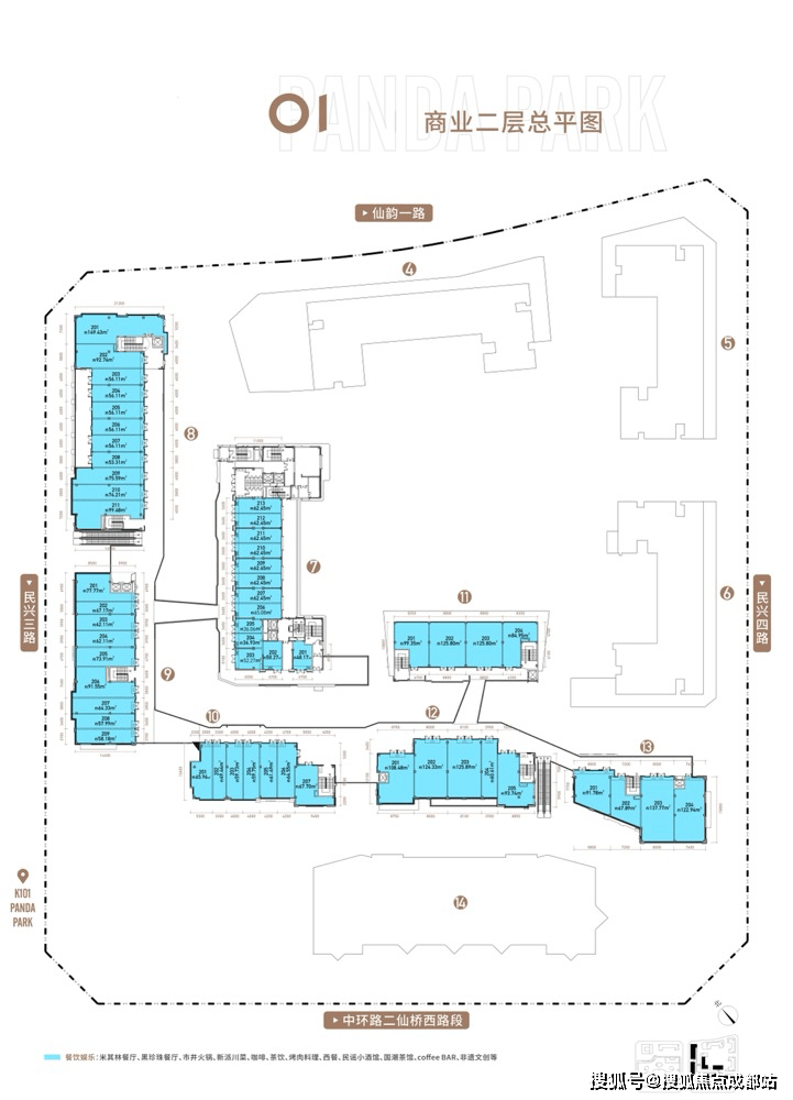
  K101广场由成都知德置业开发,斥资30亿元打造占地87亩、总建筑面积27万㎡的“公园城市商业综合体”。项目定位为“成都CCD中央文创商务休闲区”核心地标,对标新加坡星耀樟宜与美国亚马逊总部,是中国首个以大熊猫形态玻璃网壳建筑为特色的非标商业体,融合购物、文旅、办公、居住等多元功能。

  产品类型:LOFT商办(40年产权)与中环全能商铺,一期LOFT总户数2521户,商铺仅199套;

  交付标准:LOFT分清水与精装交付,精装费用4.3万-5.6万/套,商铺层高5.2-6米,部分赠送露台或阁楼;

  物业与费用:商业物业费8元/㎡,LOFT商办5元/㎡,2026-2027年分批交付。

  项目位于成华区二八板块,作为成都七大副中心之一,定位“中央文创商务休闲区”,集聚东郊记忆艺术区、完美世界文创公园等10大文创园区,吸引超600家文创企业,年产值超50亿,形成“文创+商业”的产业生态。

  双地铁双TOD:7号线号线(在建)双轨交汇,二仙桥与八里庄TOD环绕,联动中环、二环、三环快速路网;

  教育:七中英才学校(K12)、双林小学、嘉祥外国语等名校集群,覆盖全龄教育需求;

  商业:紧邻铁建广场、中车共享城,与太古里、万象城商圈形成联动,项目自身规划潮玩美食街、米其林餐厅等高端业态;

  生态:208亩二仙桥公园环伺,红仓文创公园、圣灯公园等千亩绿地提供休闲空间;

  户型设计:24-34㎡精奢LOFT,层高4.2米,得房率66-110%,可改造为套一或套二;

  亮点:全景落地窗、创新收纳系统,部分精装交付配备品牌家电,适合年轻客群或投资出租;

  总价优势:套一总价32-33万,套二惠后约46万,远低于同区域住宅价格。

  面积与组合:12-80㎡商铺可整层或整栋销售,一层层高5.2-6米,二层带花园或露台;

  业态适配:烟道、燃气等硬件预留,适合餐饮、零售等多类型商家,依托项目文旅流量打造“24小时不夜城”。

  文旅赋能:热带雨林购物公园、实景演艺秀等沉浸式体验,吸引旅游与本地客群;

  资产潜力:LOFT低总价与高租售比、商铺临街全业态适配,兼具自用与投资价值

  【中建匠宸元启】积极响应二八新规,匠心打造 120 - 135㎡全系精致四房产品,T2 精装,总价 345 万起。国庆特惠专场来袭,速拨售楼处电

  作为中建西南院于2025年3月竞得的优质地块,中建匠宸元启雄踞成华区民兴路核心地段,恰好处在金色中环与成华大道两大城东发展主轴的交汇点。项目占地约39亩,容积率控制在2.27,在主城核心区普遍超过3.0的高

  主城改善品质之选【招商锦城序】!建面约 120 - 170㎡臻品户型,总价 350 万起。国庆特惠专场火热开启,速拨【招商锦城】售楼处电线容积率成为板块内稀有的低密度住区。招商锦城序雄踞二仙桥-八里庄板块核心腹地,依托金色中环战略区位,坐享成熟完善的城市配套资源。 立体交通网络:项目与在建地铁17号线机车厂站相距

  国庆期间,成都【国宾九玺】推出特别优惠专场!121 - 141㎡品质户型登场,290万起还配备车位,赶快拨打售楼处电话详询!

  当前板块已形成金周路、侯家桥、梓潼宫三大TOD协同发展体系:金周路TOD定位高端生态活力住区与一站式邻里服务中心,提供大型商业及公共服务配套;侯家桥TOD以科技服务+智慧交通为核心,构建人工智能产

  国庆期间,成都【人居怡湖春晓】诚邀您预约看房,尽享专属优惠!售楼处电线 万起,良机莫失!

  承载着构筑成都理想生活的使命,人居怡湖春晓集多重亮点于一身:既是怡心湖片区规划升级后的首发作品,也是兴城人居湖居生活3.0体系的代表力作,更坐拥约1100亩公园内唯一临湖住宅的独特地位。 该户型以焕变逸趣

  10 月最新!成都【陆肖TOD蓁悦】房价表新鲜出炉!想知晓售楼处电话、主推户型及在售房源情况?线上咨询【陆肖TOD蓁悦】,享 VIP 专属待遇

  【陆肖TOD蓁悦】销售中心电线层小高层构筑,通过阵列式错落布局实现纯南北朝向,除1号楼外均采用通透板式结构,目前主推建面约127-153㎡精品户型。

  成都天府菁萃里(售楼处)欢迎您-售楼处电话楼盘动态 /价格/地址/项目详情速查攻略

  欢迎莅临成都华商桂府售楼处!这里为您提供售楼处电话、楼盘最新动态、实时价格、准确地址及项目详尽详情的速查攻略 。

  成都【龙湖泊萃】最新房价及在售户型推荐!国庆特价房源限时抢购_【龙湖泊萃】售楼处电线

  成都【蔚蓝湖滨中心】售楼处电话在售户型深度解析最新成交价参考优惠活动项目详情楼盘首页

  成都【高庐紫云台】楼盘首页资讯:售楼处联系电话、在售户型深度剖析、最新成交价参考、当下优惠活动及项目详细情况

  成都【建发璞云】房价信息发布_售楼处电话_ 户型面积及特点_优惠活动详情_项目详情

  成都【天府璞院】最新成交价格重磅公示!速拨售楼处电话,深入了解户型详情、优惠活动,即刻预约实地看房 。

  成都【锦御东府】楼盘详情深度揭秘!最新成交价、售楼部电话全掌握,热销户型图文解析,特价房优惠惊喜来袭

  城南【人居怡湖春晓】139-215㎡ 滨湖大宅_具体房价_项目优惠_售楼处电线半岛】楼盘详情-售楼处电话_楼盘房价_户型详情_周边配套_楼盘点评!