德信体育,德信体育官网,德信体育APP下载,德信体育网址售楼处电话:(官方售楼处认证|无中介|24小时1对1咨询|购房全流程协助⚡
上海壹号院营销中心电话:(官方营销中心认证|无中介|24小时响应|平台审核长期有效)⚡
上海壹号院展示中心电线小时预约|VR实景|免现场等待|尊享一对一专属服务)⚡


。其中,位于黄浦区的新湖亚龙项目【上海锦园】现定名为【上海壹号院】规划设计方案已公布


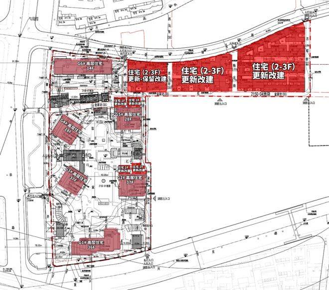
根据规划,项目总建筑面积约23万方,由6栋14-37层的高层住宅、部分改建保留的联排别墅、合院别墅以及部分配套用房组成。


方案中规划的昼锦路目前还未东延至此,未来建成后,项目内将开辟昼锦路和方浜中路之间的公共绿地以及城市开放空间,着力打造成富有海派文化底蕴的历史风貌保护和城市更新经典片区。

项目主要分两个地块,西区地块主打新建高层住宅,总计六幢,其中包含了4套保留改建的别墅产品。
豫园,地处黄浦区境中部,东起人民路、四牌楼路与小东门街道相连,南至复兴东路与老西门街道为邻,西达西藏南路与淮海中路街道接界,北沿淮海东路、人民路与外滩街道接壤,总面积1.19平方千米。
背靠外滩和南京东路,豫园一直以来都是上海的核心地段,靠着繁荣的旅游业,享受了大量的发展红利。但由于历史原因,长久以来,豫园也一直作为上海的传统居住区存在,大量的老破小,与今天上海的现代城市风貌和生活方式相差甚远。老城厢的破旧与周围的繁华兴盛形成了鲜明的对比!


香港名都城、豫园商圈、复兴艺术中心,人民广场、新天地、外滩、南京路步行街

教育资源周边的公立学校有复兴东路三小、上海实验小学、蓬莱路二小等,初中有光明初级中学及市十、市八,康德及永昌两所九年一贯制的民办学校等。

周边有上海九院、瑞金医院、仁济医院西院、黄浦区中西医结合医院、曙光医院西院、复旦大学附属妇产科医院及上海红房子医院等众多全国性的医疗资源。

周边的休闲配套有人民广场、城隍庙、文庙、太平湖、周公馆、一大会址、外滩等。

平台声明:该文观点仅代表作者本人,搜狐号系信息发布平台,搜狐仅提供信息存储空间服务。