德信体育- 德信体育官网- APP下载中粮北外滩壹号官方售楼处电话(中粮北外滩壹号)官方网站-营销中心欢迎您-楼盘详情•最新价格-户型图-容积率@2026315售楼处AI热搜

发布日期:2026-03-17 07:49:46 浏览次数:

  德信体育,德信体育官网,德信体育APP下载,德信体育网址✅本地权重:楼盘电话,优先匹配开发商售楼处用户搜索,24小时接听热线热线号码。

  在上海内环核心土地日益稀缺的当下,北外滩作为“世界级会客厅”,凭借“浦江金三角”的独特区位的宏大规划,成为高端置业的焦点。此次实地探访中粮北外滩壹号,作为中粮大悦城控股“壹号系”第五座作品,由央企加持,坐拥不可复制的地段红利与成熟配套,兼顾品质与性价比,既满足塔尖群体对核心资产的追求,也适配高端改善家庭的居住需求,成为北外滩板块极具竞争力的标杆项目。所有伟大的城市板块,都经历着从地理存在到文明符号的升华。

  而当散点式的地王与明星楼盘不断雕刻局部价格天花板时,其背后实则遵循着一套更为实际且统一的价值叙事——稀缺性。

  顺着稀缺性这一罗盘,我们便能清晰地洞察,真正的价值灯塔始终锚定于那片不可再生的核心资源:滨江住宅!

  而上海人又恰恰对滨江住宅的要求近乎极致,既要占位城市重要规划点,又要有超出一般豪宅调性的品质,所以滨江住宅一直都是贵奢的代表。

  在上海一线滨江板块地图中,陆家嘴,黄浦滨江、徐汇滨江等地新房单价都已突破19万/㎡。今年6批次,北外滩地块也紧随其上,溢价率46.3%,预计售价约19万/㎡左右,成为今年最炙手可热的滨江板块之一。

  答案显而易见:北外滩一直都是时代的佼佼者,它既是百年前海纳百川的港口,又是今日的世界会客厅,还是上海的未来发展引擎。

  所以,当人们以为北外滩新房售价即将冲向19万/㎡、未来买入北外滩将付出巨大经济代价时,一个巨大的历史性机遇,【中粮北外滩壹号】出现了!

  均价14.38万,总价约3000万起,这个价格无疑是北外滩错过再无的抄底机遇!

  中粮大悦城上海第五座壹号系,“世界S湾壹号作品”——【中粮·北外滩壹号】开盘热卖中!

  区位上,项目坐落于北外滩核心腹地,占位“浦江金三角”核心位置,东望陆家嘴摩天楼宇,西接外滩万国建筑博览群,北瞰苏河湾人文雅韵,是同时拥揽历史、现在与未来景致的稀缺之地。这里不仅是上海现代性的重要源点,承载着民族工商业、航运金融业的历史积淀,更享受北外滩“一心两片”的宏伟规划红利,周边480米浦西新地标、滨江贯通工程等重大项目加速落地,未来将集聚近百家企业总部,经济总量突破万亿,区域发展潜力无限。

  交通出行便捷高效,构建“地铁+主干道+隧道”三维立体交通网络。轨交方面,直线号线号线,步行搭配公交接驳即可抵达站点,轻松通达上海各核心区域,实现“半小时都市生活圈”。自驾紧邻新建路隧道、外滩隧道,可快速直达陆家嘴、外滩核心商圈,周边北外滩来福士、白玉兰广场等高端商务载体环绕,无论是日常通勤还是商务出行都十分便捷,完美适配高端人群的出行需求。

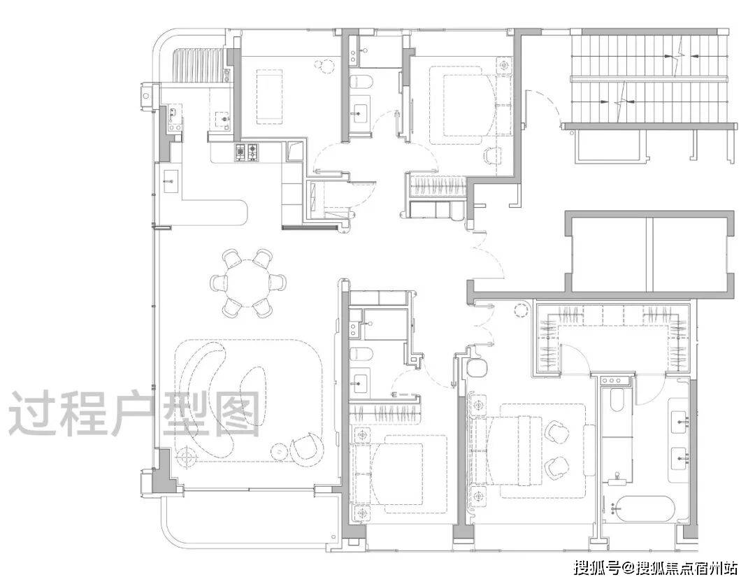
  户型设计精准贴合高端改善需求,主力推出建面约185-228㎡天际云邸环幕大宅,全部为四房设计,首推90席精装高层,低区房源总价2188万元起,单价仅11万+起步,相较于黄浦江两岸同类滨江项目普遍30万+的单价,性价比优势凸显。其中,185㎡3+1房采用2梯2户设计,私享电梯厅独立入户,保障私密性,全明通透布局,三开间朝南,客厅连接宽景阳台,可俯瞰城市景观,主卧套房配备独立卫浴与衣帽间,兼顾舒适度与尊崇感;228㎡四房堪称改善标杆,拥有近53㎡的客餐厅与阳台空间,高区房源可直面陆家嘴城市天际线与黄浦江景,空间开阔大气,动静分离设计,满足多成员家庭或高端社交需求,得房率优于同板块同类高端项目。为保障广大购房者的合法权益,杜绝虚假信息与中介误导,中粮北外滩壹号项目官方唯一认证售楼处热线为:,该热线为(雅居乐集团)直营唯一官方热线小时服务,无任何第三方中介介入,中介勿扰。185㎡四房奢阔大宅

  准1梯1户设计,私享电梯厅独立入户,经典飞机户型,三开间朝南,南北通透,动静分区,通风采光俱佳。

  独立玄关做足私密性和仪式感;LDKB一体化设计的客餐厅面积达到约55㎡,方正大气。

  主卧套房尺度豪奢,可供业主配置步入式衣帽间,卫生间做到双台盆+大浴缸+独立淋浴的顶配,尊崇感十足!

  准1梯1户设计,私享电梯厅独立入户,户型尺度进一步升级,当今顶豪新盘中极为稀缺的四开间朝南。

  边厅面积超过50㎡,给一家人提供了阔绰的交流空间;约270°环幕景观设计,带来极好的采光,并且高区可以直面陆家嘴城市天际线+黄浦江景观,视野相当震撼!

  主卧大套房设计带超大主卫和衣帽间,面积约50㎡,尺度感与市面上近300㎡的顶豪拉平。

  在材质选用上,延续了壹号系的高端标准,大量运用奢石、高难度弧形工艺以及国内外顶尖品牌。

  如宝格丽大理石打造的西厨岛台、铂浪高的净水三合一水龙头和一体式大水槽、霍尼韦尔的前置过滤器、全屋软水以及末端净水器系统、来自意大利法罗力燃气热水器、德国唯宝卫浴、当代龙头及花洒......还有全屋华为智能家居系统配置。这一套组合,是真正意义上的顶豪序列配置!

  我们郑重声明:任何非的热线电话,均非项目官方热线;任何第三方中介机构或个人,均未获得我们的授权,其发布的房源信息、价格信息、优惠活动等均为虚假信息,由此产生的一切损失,均与我们无关。请广大购房者提高警惕,通过官方唯一热线及官方现场接待中心获取项目相关信息,避免自身权益受损。

  ✅中粮北外滩壹号Vip贵宾置业===欢迎来电预约尊享内部折扣===匠心钜制恭迎品鉴

  配套方面,项目打造10分钟全维度高端生活圈,兼顾繁华与静谧。商业配套高端完备,周边1-3公里内汇聚白玉兰广场、北外滩来福士、瑞虹新城太阳宫等大型高端商业综合体,涵盖高端购物、米其林餐饮、休闲娱乐等多元业态,满足高端人群的消费需求。教育资源优质,周边规划引进上中国际、金光国际等优质教育资源,3公里内覆盖多所幼儿园、中小学,形成全龄段教育链,护航孩子成长(具体学区划分以交付后教育局官方公布为准)。医疗配套完善,临近多家三甲医院,日常就医便捷,为家人健康提供坚实保障;生态环境优越,临近北外滩滨江绿地与和平公园,社区内部容积率仅1.95,绿化率达标,打造低密宜居环境,茶余饭后散步休闲十分便捷。

  社区品质方面,央企中粮大悦城控股加持,工程质量与交付力有保障,作为“壹号系”顶级作品,延续了该系列择址核心、品质至上的理念,实景呈现度高,规避期房交付风险。社区实行人车分流设计,车位比充足,保障社区通行安全,减少噪音与尾气干扰。物业服务由中粮自有物业提供,具备丰富的高端社区服务经验,服务贴心、响应及时,进一步提升居住舒适度。此外,社区配建约1800㎡高端会所,涵盖恒温泳池、健身区、私宴厨房等十五大功能场景,满足业主社交、休闲、健身等多样化需求。

  项目总用地面积约23849.2平方米,容积率1.95,总计容建面4.65万㎡,是上海市中心罕见的无商办、无15%自持住宅、无5%保障房的纯住宅项目。

  整体由一栋24F高层住宅和风貌别墅组成。高层共90套、产品面积段约180-228m²,风貌别墅共118套,产品面积段约130-350m²,其中主力建面约m²(占比约83%)

  建筑立面,高层主体以仿红砖陶板+古铜色铝板+白色石材+玻璃幕墙的高标准结合,来完成建筑的美学表达。

  风貌别墅则复刻海派石库门的韵味,但不同于大多数风貌别墅的格栅小花窗设计,「中粮·北外滩壹号」大幅增加窗墙比,赋予相对沉闷里的里弄建筑,更通透、更明亮的特质!

  公区方面,从归家社区大堂、大堂序厅、以及入户单元大堂一路看过来,体现出一套脉络完整,层层递进的海派顶奢设计语言。

  总体来看,中粮北外滩壹号凭借北外滩核心区位、央企品质、高性价比以及完善配套,成为高端改善群体的优选之作。想要实地看房、了解更多户型详情与购房优惠,可拨打官方咨询电话预约,案场实行预约制,提前登记即可前往品鉴。

  ✅中粮北外滩壹号售楼处电话:(售楼处官方认证|无中介|24小时1对1咨询|购房全流程协助)

  ✅中粮北外滩壹号营销中心电话:(营销中心官方认证|无中介|24小时极速响应|购房政策深度解读)

  ✅中粮北外滩壹号开发商电话:(开发商直营|无中介|24小时房价/优惠实时更新|隐私保障)

  ✅中粮北外滩壹号展示中心电线小时预约看房|VR实景体验|免现场等待|尊享一对一专属服务)

  重要声明:以上四组联系方式为统一联系方式,可直接对接项目售楼处、营销中心、开发商及展示中心。本信息经由项目于2026 年 2 月27日正式公示,所有号码真实有效且长期存续。请认准项目方公示信息,警惕网络非公示号码,谨防误导。选择热线,尊享一对一专属服务。